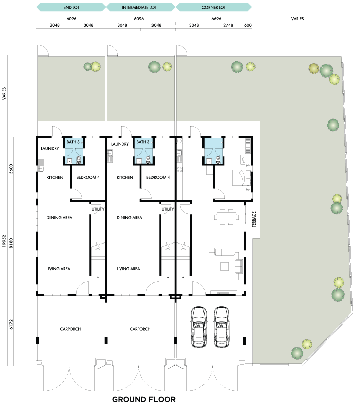
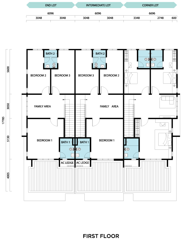
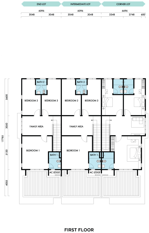
Meria & Elaria @ Laman Sendayan 2A

2-Storey Link Homes

RM 500K – RM 1M

Project Information:

icon_lotsize

Lot Size: 20’ x 70’

icon_builtup

Built-Up Area from: 2,148 sq.ft.

icon_bed2

4 Bedrooms

icon_bath2

3 Bathrooms

/

Price from

RM 547,999*

Why Meria & Elaria:

  • Freehold development
  • In a thriving township of Bandar Sri Sendayan
  • Smart homes features
  • Complimentary 5 Terms clubhouse membership

*Disclaimer: T&C Apply. All renderings contained in this advertisement are artist’s impressions only. The information contained herein is subject to change without notification as may be required by the relevant authorities or developer’s project consultant. Whilst every care is taken in providing this information, the owner, developer and manager cannot be held responsible for any variations. This is not a gated and guarded development. For avoidance of doubt on the specifications and development status, please always refer to the Sale and Purchase Agreement.

Whatsapp Us!

listing_BG3