Verra @ Eka Heights

2-Storey Link Homes

RM 500K – RM 1M

Project Information:

icon_lotsize

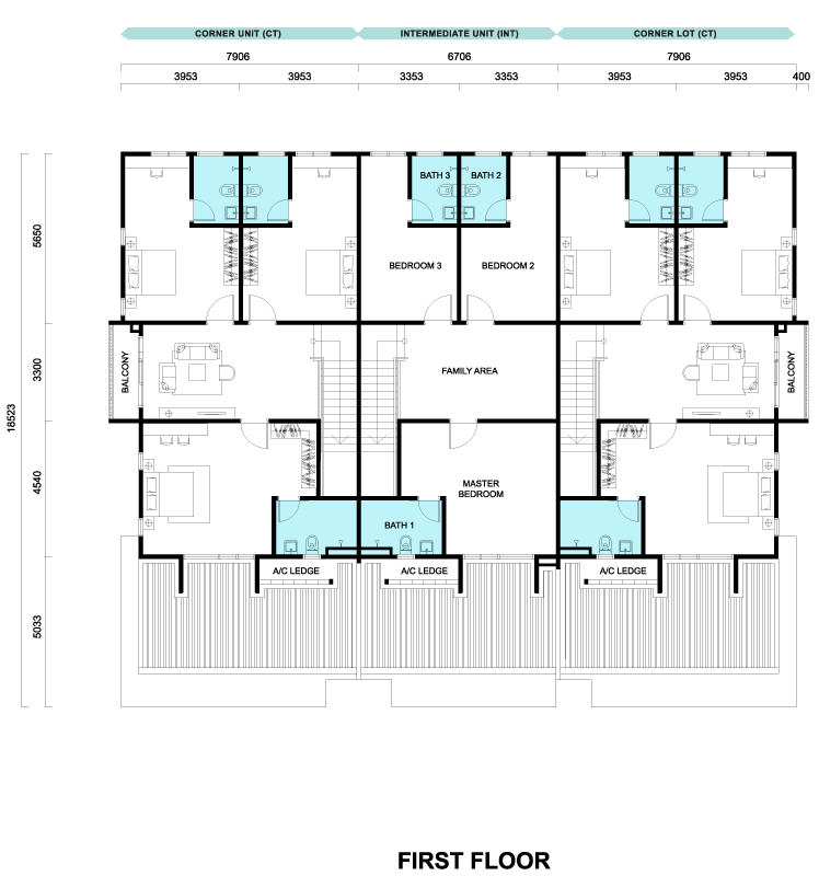
Lot Size: 22’ x 70’

icon_builtup

Built-Up Area from: 2,315 sq.ft.

icon_bed2

4 Bedrooms

icon_bath2

4 Bathrooms

/

Price from

RM 660,888*

Why Verra:

  • Freehold Ownership
  • Private Backyard Retreat
  • Advanced Smart Home System
  • High Ground Development
  • Complimentary Clubhouse Membership
  • 15.5 acre Mageka Park

*Disclaimer: T&C Apply. All renderings contained in this advertisement are artist’s impressions only. The information contained herein is subject to change without notification as may be required by the relevant authorities or developer’s project consultant. Whilst every care is taken in providing this information, the owner, developer and manager cannot be held responsible for any variations. This is not a gated and guarded development. For avoidance of doubt on the specifications and development status, please always refer to the Sale and Purchase Agreement.

Whatsapp Us!

listing_BG3